Skip to content

Our Wyee Display Home will be closed on Sunday 3rd and Monday 4th. Explore our other display locations here.

Home finder
Search
house type icon
beds icon
baths icon
cars icon
lot width icon
home area icon
Back to Listings
Blog Article

Guide | Perfect 'First Home' Home Designs

Smart, Stylish & Affordable:

TOP 5 First Home Designs

Building your first home is exciting, but choosing the right design can feel overwhelming. From smart layouts to flexible spaces, these five home designs are perfect for first-time buyers who want style, functionality, and value. Discover homes that work for today and grow with your future.

3 Smart Tips to Consider with a First Home Design

Great first homes are designed to suit common block sizes, stay affordable without sacrificing style, and remain easy to live in now — with flexibility for the future.

1. Prioritise smart layouts

Efficient, open-plan designs feel bigger and cost less to build.

2. Plan for what’s next

Flexible spaces make it easier to adapt as your lifestyle changes.

3. Choose value, not excess

Focus on comfort and functionality without unnecessary extras.

Lifestyle - First Home (40)
First home favourite

1. The Parkes 157

A smart, compact home that makes the most of every square metre. Open-plan living connects seamlessly to the alfresco, while the private master suite at the rear keeps everyday life practical and comfortable. Ideal for first-time buyers who want style and function on a budget.

Why First Home Buyers Love It

  • Open-plan kitchen, dining and living
  • Private master suite at the rear
  • Easy connection to alfresco
  • Low-maintenance and practical

Ideal for relaxed living and entertaining, all within a manageable footprint.

3 bed | 2 bath | 1 car | 1 storey

Learn More
Parkes157_FloorplanSquare
Get to know

2. The Dalwood 189

Efficient, family-friendly, and perfect for smaller blocks. The Dalwood brings the kitchen, dining, and living areas together in a central hub, while the master suite with walk-through robe and ensuite provides a private retreat. Bedrooms are thoughtfully positioned for privacy and convenience.

Why First Home Buyers Love It

  • Central living hub
  • Master with walk-through robe
  • Private bedrooms

Stylish and practical, ready to adapt as your family grows.

3 bed | 2 bath | 2 car | 1 storey

Learn More
DALWOOD 189 - Marketing Plan LHG
Get to know

3. The Ashford 208

A versatile home designed for growing families. Its open-plan living space flows to the alfresco, making indoor-outdoor living effortless, while the master suite at the rear provides a private sanctuary. The Ashford balances everyday comfort with spaces for entertaining.

Why First Home Buyers Love It

  • Spacious central living area
  • Kitchen connects to alfresco
  • Private master suite
 

Ideal for family meals, entertaining, and quiet family moments.

4 bed | 2 bath | 2 car | 1 storey

Learn More
ASHFORD 208 - Marketing Plan LHG
Get to know

4. The Manton 210

Cleverly zoned for privacy and togetherness, the Manton separates living and sleeping areas while keeping everyone connected. The open-plan kitchen, dining, and living area flows to a media room and alfresco, creating versatile spaces for family life and entertaining.

Why First Home Buyers Love It

  • Master suite at front with walk-in robe and ensuite
  • Expansive open-plan living
  • Walk-in pantry and laundry access
 

Perfect for families who want space to gather, unwind, and entertain.

4 bed | 2 bath | 2 car | 1 storey

Learn More
MANTON 210 - Marketing Plan RHG
Experience

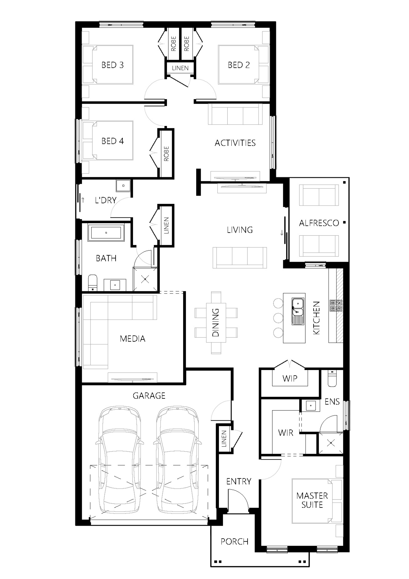
5. The Ellerton 217

Spacious and flexible, the Ellerton 217 is designed to grow with your family. Multiple living areas, a media room, and a children’s activity space provide room for every lifestyle need, while a private master suite with a separate bedroom wing ensures comfort and privacy.

Why First Home Buyers Love It

  • Multiple flexible living spaces
  • Gourmet kitchen connecting to living and dining
  • Private master suite and separate bedroom wing
A first home that works today and evolves with your family over time.

4 bed | 2 bath | 2 car | 1 storey

Learn More
ELLERTON217-Marketing-Plan-LHG

 

From your first home to your forever home, find a space that’s flexible, comfortable, and ready to grow with you.

 

Get Started Today

Ready to build your own dream home? Start by exploring our Single Storey Home Designs or visit one of our display homes to see what's possible. Hunter Homes is here to make your first home everything you've imagined.